Narrow Lot House Plans With Side Garage
Camila Farah

These blueprints by leading designers turn the restrictions of a narrow lot and sometimes small square footage into an architectural plus by utilizing the space in imaginative ways.
Some narrow house plans feature back loading garages with charming porches in front. With a side entry garage your home appears measurably larger and the front can be designed or decorated with additional features. These side entry garage house plans include all kinds of homes luxury ranch etc while ensuring you retain a fashionable side entry garage. Our side entry garage plans can be modified to fit your needs.
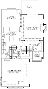
These narrow lot house plans are designs that measure 45 feet or less in width. Find 30 ft wide designs small lot homes w rear garage 3 storey layouts more. Find a house plan that fits your narrow lot here. Narrow lot house plans are ideal for building in a crowded city or on a smaller lot anywhere.
Other house plans for narrow lots have traditional front garages while some have no garage at all which may suit you just fine. Call 1 800 913 2350 for expert help. Builder house plans hot buys contemporary ranch corner lot house plans with side load garage elevated stilt piling and pier plans exclusive house plans with open floor plans house plans with walkout basements luxury multifamily house plans and duplex designs narrow lot see all collections. Land is expensive particularly in a densely developed city or suburb.
Image Gallery
Source : pinterest.com



















